Kabina walk-in 100 czarna kratka Radaway Nes Black Walk-in II Factory 10013100-54-55
- Prysznic walki-in czarny 100 cm Radaway Nes Black Walk-in II Factory ze szkłem przejrzystym z czarną kratką z czarnym profilem i stabilizatorem. Szkło o wysokości 200 cm bezpieczne, hartowane, przejrzyste o grubości 6 mm.

Kabina walk-in czarna o szerokości 100 cm ze szkłem przejrzystym z czarną kratką Factory z serii Radaway Nes Black Walk-in II Factory.
Prysznic typu walk-in z serii Radaway Nes Black Walk-in II Factory z czarnymi elementami montażowymi i czarnym stabilizatorem z dużą szybą ze szkłem Faktory z czarna kratką. Szkło hartowane o grubości 6 mm. Szyba z czarnym liniami wykonanymi farbą ceramiczną zespoloną ze szkłem w procesie hartowania. Kabina wsparta czarnym mosiężnym stabilizatorem przytwierdzonym do ściany. Ścianka z serii Radaway Nes to wydzielona przestrzeń dużą taflą szkła przejrzystego Factory i wspornikiem w kolorze czarnym, z otwartym wejściem. Ścianka bardzo dobrze prezentuje się w łazience zamontowana bezpośrednio na podłodze na brodziku podtynkowym lub na brodziku zlicowanym z podłogą.
Symbol kabiny: 10013100-54-55
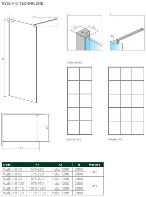
Wysokość szyby: 2000 mm

Cechy charakterystyczne kabiny walk-in Radaway Nes Black Walk-in II Factory 100:
- Szkło przejrzyste o grubości 6 mm z czarną kratką Factory
- Powłoka Easy Clean na szybie ułatwia utrzymanie kabiny w czystości, krople wody nie utrzymują się na powierzchni szkła
- Czarny wspornik prostopadły zapewniające stabilną konstrukcję kabin
- Montaż do ściany za pomocą profilu przyściennego
- Szybę prysznicową można zamontować na brodziku lub bezpośrednio na podłodze
- Czarna kratka Factory naniesiona na szybą w procesie hartowania co powoduje ponadprzeciętna jakość oraz odporność na ścieranie i promieniowanie
- Możliwość zamówienie niestandardowych wymiarów
- Czarny stabilizator poprzeczny o długości maksymalnie 1500 mm. Możliwość przycięcia do potrzebnego wymiaru.
- Ścianka uniwersalna może być zamontowana po stronie lewej lub prawej
- Szkło harotowane
- Kabina przyjazna dla osób niepełnosprawnych
3 lata gwarancji. (możliwość przedłużenia gwarancji o 2 lata korzystając z usługi Certyfikowanego Instalatora Radaway)
Opcje dodatkowe
- Możliwość zamówienia profilu poszerzającego kabinę Nes Black walk-in o 2 cm
- Polecamy ściągaczkę łazienkową firmy Radaway w kolorze czarnym
- Polecamy czarny wieszak do kabiny prysznicowej
- Środek do odświeżania powłoki ochronnej Easy Clean Glass Protector
- Środek do czyszczenia kabin Glass Cleaner
- Możliwość wykonania ścianki na zamówienie za dopłatą w innych wariantach szkła: Brązowym, Grafitowym, Satynowym, UltraClear, Mirror i Intimato, Gradient.


















