Brodzik akrylowy 110x90 Radaway Doros D Stone kaszmirowy
- Kaszmirowy niski brodzik akrylowy Radaway Doros D Stone w rozmiarze 110 x 90 ze strukturalną powierzchnią antypoślizgową, antybakteryjną Stone. Prostokątny kaszmirowy brodzik SDRD1190-01-84S o wysokości 5 cm z odpływem przy dłuższej krawędzi.

Niski kaszmirowy brodzik prostokątny 110x90 Radaway Doros D Stone z antypoślizgową powierzchnią SDRD1190-01-84S.
Kaszmirowy brodzik akrylowy Radaway Doros D Stone o wymiarze 110 x 90 o wysokości 5 cm ze strukturalną powierzchnią antypoślizgową, antybakteryjną Stone. Niski brodzik do montażu bezpośrednio na podłodze. Powierzchnia brodzika odporna na zawilgocenie i zagrzybienie ułatwiającą czyszczenie. Szybki montaż oraz prosta regulacja. Brodzik prostokątny z otworem na syfon Ø 90 mm po środku przy dłuższej krawędzi.
Opis brodzika Radaway Doros D Stone Kaszmirowy:
- kolor: Kaszmirowy
- powierzchnia antypoślizgowa zgodne z normą DIN 51097
- otwór na syfon Ø 90 mm po środku przy bocznej dłuższej krawędzi
- brodzik płytki żywicowany
- szybki montaż
- prosta regulacja
- powierzchnia odporna na zawilgocenie, zagrzybienie, ułatwiająca czyszczenie
- montaż bezpośrednio na podłodze
- możliwość zakupu nóżek
- brodziki z serii Doros D dostępne również w innych kolorach
- syfon nie jest w komplecie z brodzikiem
Wymiary brodzika:
- długość x szerokość 110 x 90 cm
- wysokość: 5 cm
- głębokość w środku: 1,2 cm
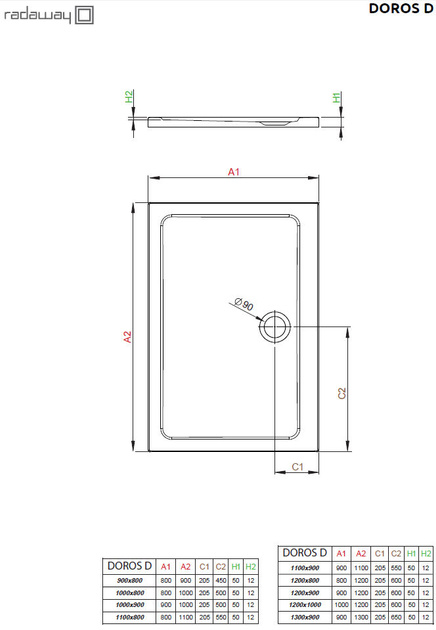
Rysunek techniczny brodzika Doros D
Instrukcja montażu brodzika Doros D
Zalecane syfony: TB90, TB90 biały, TB21, TBXS, R500, R580, R580 biały, R580 czarny, R510, R400 SLIM, R400 SLIM czarny, R400W SLIM lub R583G złoty.
Możliwość zakupu nóżek do brodzika: NB003-W4 (4 szt.) lub NB003-W1 (1 szt.). Dedykowana ilość nóżek do rozmiaru: 5 szt.




















